ASTM C1644-06(2017)
(Specification)Standard Specification for Resilient Connectors Between Reinforced Concrete On-Site Wastewater Tanks and Pipes
Standard Specification for Resilient Connectors Between Reinforced Concrete On-Site Wastewater Tanks and Pipes
ABSTRACT
This specification covers the minimum performance and material requirements for resilient connectors used for connections between reinforced concrete tanks used for septic effluent treatment/detention. All materials shall be suitable for use in sanitary sewage applications. Each connector design shall be tested in accordance with the requirements specified. The following test methods shall be performed: straight alignment; axial deflection; and shear loading.
SCOPE
1.1 This specification covers the minimum performance and material requirements for resilient connectors used for connections between reinforced concrete tanks used for septic effluent treatment/detention, including those referenced in Specifications C913 and C1227.
1.1.1 These connectors are designed to eliminate leakage between the pipe(s) and tank.
1.2 A complete metric companion to Specification C1644 has been developed—C1644M; therefore, no metric equivalents are presented in this specification.
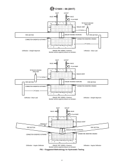
Note 1: This specification covers the design, material, and performance of the resilient connection only. Connections covered by this specification are adequate for hydrostatic pressures up to 5 psi (11.5 ft) without leakage when tested in accordance with Section 7. Infiltration or exfiltration quantities for an installed system are dependent upon many factors other than the connectors between tanks and pipes, and allowable quantities must be covered by other specifications and suitable testing of the installed pipe and system.
1.3 The following precautionary caveat pertains only to the test methods portion, Section 7, of this specification. This standard does not purport to address all of the safety concerns, if any, associated with its use. It is the responsibility of the user of this standard to establish appropriate safety, health, and environmental practices and determine the applicability of regulatory limitations prior to use.
1.4 This international standard was developed in accordance with internationally recognized principles on standardization established in the Decision on Principles for the Development of International Standards, Guides and Recommendations issued by the World Trade Organization Technical Barriers to Trade (TBT) Committee.
General Information
- Status
- Published
- Publication Date
- 31-Oct-2017
- Technical Committee
- C27 - Precast Concrete Products
- Drafting Committee
- C27.30 - Water and Wastewater Containers
Relations
- Effective Date
- 01-Nov-2017
- Effective Date
- 01-Feb-2024
- Effective Date
- 01-Nov-2023
- Effective Date
- 01-Nov-2023
- Effective Date
- 01-Nov-2023
- Effective Date
- 01-Jan-2020
- Effective Date
- 01-Aug-2019
- Effective Date
- 15-Apr-2019
- Effective Date
- 01-Feb-2019
- Effective Date
- 01-Dec-2018
- Effective Date
- 01-Nov-2018
- Effective Date
- 01-Jan-2018
- Effective Date
- 01-Nov-2017
- Effective Date
- 15-Aug-2017
- Effective Date
- 01-Dec-2016
Overview
ASTM C1644-06(2017) establishes the standard specification for resilient connectors used between reinforced concrete on-site wastewater tanks and pipes. This document specifies the minimum performance and material requirements for connectors intended for septic effluent treatment and detention systems. The standard ensures that all materials used are suitable for sanitary sewage applications and outlines essential design, manufacturing, testing, and marking criteria. Its primary goal is to eliminate leakage between tanks and pipes, helping organizations and professionals in the wastewater industry achieve reliable, leak-resistant sanitary connections.
Key Topics
Material Requirements
- Connectors must be made from resilient materials, such as natural or synthetic rubber, and meet specified criteria for strength, durability, resistance to chemicals, and environmental stress.
- Metallic components of the connector must be constructed using corrosion-resistant materials, specifically series 300 stainless steel, to ensure longevity in harsh environments.
Performance Criteria
- Connectors are designed to provide a positive seal at two critical locations: between the connector and the tank, and between the connector and the pipe, effectively preventing infiltration and exfiltration.
- Tested for resistance to hydrostatic pressures up to 5 psi (11.5 ft) without leakage.
Testing Requirements
- Each connector design must undergo comprehensive testing, including:
- Straight alignment
- Axial deflection (pipe movement)
- Shear loading (external loads)
- Tests simulate actual installation scenarios to verify performance under anticipated conditions.
- Chemical resistance, durability, tensile strength, elongation, hardness, resistance to ozone, and brittleness at low temperatures must all meet stringent benchmarks.
- Each connector design must undergo comprehensive testing, including:
Certification and Marking
- Connectors must be permanently marked with the manufacturer’s trade name and part number.
- Manufacturers are required to provide current certification (no more than five years old) that connectors pass all designated mechanical and material tests.
Applications
ASTM C1644 is widely used in the design, manufacturing, specification, and installation of wastewater management systems, including:
- Septic Systems: Ensures secure, watertight interfaces between precast concrete tanks and inlet/outlet pipes, reducing risk of ground or surface water contamination.
- Precast Concrete Water Detention/Retention: Protects against fluid leakage in critical infrastructure for stormwater and wastewater management.
- Sanitary Sewage Applications: Facilitates compliance with local and international standards for safe and effective wastewater containment and transport.
- Construction Projects: Used by engineers, contractors, and environmental professionals involved in installation of on-site wastewater treatment tanks.
Organizations that follow ASTM C1644 benefit from improved durability, reduced maintenance costs, and regulatory compliance in their wastewater containment systems.
Related Standards
For a comprehensive approach to designing and maintaining precast concrete wastewater and water containment systems, several related ASTM standards should be consulted:
- ASTM C913: Specification for Precast Concrete Water and Wastewater Structures
- ASTM C1227: Specification for Precast Concrete Septic Tanks
- ASTM C822: Terminology Relating to Concrete Pipe and Related Products
- ASTM A240/A240M: Specification for Chromium and Chromium-Nickel Stainless Steel for Pressure Vessels
- ASTM D395, D412, D471, D543, D573, D624, D746, D1149, D2240: Various standards for testing material properties, including rubber and plastics relevant to connector performance
By adhering to ASTM C1644 and its companion documents, industry professionals can ensure that on-site wastewater tanks and pipe connections meet high standards of safety, reliability, and environmental protection. For more information or to access the latest updates, consult the ASTM website.
Buy Documents
ASTM C1644-06(2017) - Standard Specification for Resilient Connectors Between Reinforced Concrete On-Site Wastewater Tanks and Pipes
Get Certified
Connect with accredited certification bodies for this standard
Institut za varilstvo d.o.o. (Welding Institute)
Slovenia's leading welding institute since 1952. ISO 3834, EN 1090, pressure equipment certification, NDT personnel, welder qualification. Only IIW Au
Sponsored listings
Frequently Asked Questions
ASTM C1644-06(2017) is a technical specification published by ASTM International. Its full title is "Standard Specification for Resilient Connectors Between Reinforced Concrete On-Site Wastewater Tanks and Pipes". This standard covers: ABSTRACT This specification covers the minimum performance and material requirements for resilient connectors used for connections between reinforced concrete tanks used for septic effluent treatment/detention. All materials shall be suitable for use in sanitary sewage applications. Each connector design shall be tested in accordance with the requirements specified. The following test methods shall be performed: straight alignment; axial deflection; and shear loading. SCOPE 1.1 This specification covers the minimum performance and material requirements for resilient connectors used for connections between reinforced concrete tanks used for septic effluent treatment/detention, including those referenced in Specifications C913 and C1227. 1.1.1 These connectors are designed to eliminate leakage between the pipe(s) and tank. 1.2 A complete metric companion to Specification C1644 has been developed—C1644M; therefore, no metric equivalents are presented in this specification. Note 1: This specification covers the design, material, and performance of the resilient connection only. Connections covered by this specification are adequate for hydrostatic pressures up to 5 psi (11.5 ft) without leakage when tested in accordance with Section 7. Infiltration or exfiltration quantities for an installed system are dependent upon many factors other than the connectors between tanks and pipes, and allowable quantities must be covered by other specifications and suitable testing of the installed pipe and system. 1.3 The following precautionary caveat pertains only to the test methods portion, Section 7, of this specification. This standard does not purport to address all of the safety concerns, if any, associated with its use. It is the responsibility of the user of this standard to establish appropriate safety, health, and environmental practices and determine the applicability of regulatory limitations prior to use. 1.4 This international standard was developed in accordance with internationally recognized principles on standardization established in the Decision on Principles for the Development of International Standards, Guides and Recommendations issued by the World Trade Organization Technical Barriers to Trade (TBT) Committee.
ABSTRACT This specification covers the minimum performance and material requirements for resilient connectors used for connections between reinforced concrete tanks used for septic effluent treatment/detention. All materials shall be suitable for use in sanitary sewage applications. Each connector design shall be tested in accordance with the requirements specified. The following test methods shall be performed: straight alignment; axial deflection; and shear loading. SCOPE 1.1 This specification covers the minimum performance and material requirements for resilient connectors used for connections between reinforced concrete tanks used for septic effluent treatment/detention, including those referenced in Specifications C913 and C1227. 1.1.1 These connectors are designed to eliminate leakage between the pipe(s) and tank. 1.2 A complete metric companion to Specification C1644 has been developed—C1644M; therefore, no metric equivalents are presented in this specification. Note 1: This specification covers the design, material, and performance of the resilient connection only. Connections covered by this specification are adequate for hydrostatic pressures up to 5 psi (11.5 ft) without leakage when tested in accordance with Section 7. Infiltration or exfiltration quantities for an installed system are dependent upon many factors other than the connectors between tanks and pipes, and allowable quantities must be covered by other specifications and suitable testing of the installed pipe and system. 1.3 The following precautionary caveat pertains only to the test methods portion, Section 7, of this specification. This standard does not purport to address all of the safety concerns, if any, associated with its use. It is the responsibility of the user of this standard to establish appropriate safety, health, and environmental practices and determine the applicability of regulatory limitations prior to use. 1.4 This international standard was developed in accordance with internationally recognized principles on standardization established in the Decision on Principles for the Development of International Standards, Guides and Recommendations issued by the World Trade Organization Technical Barriers to Trade (TBT) Committee.
ASTM C1644-06(2017) is classified under the following ICS (International Classification for Standards) categories: 23.040.60 - Flanges, couplings and joints. The ICS classification helps identify the subject area and facilitates finding related standards.
ASTM C1644-06(2017) has the following relationships with other standards: It is inter standard links to ASTM C1644-06(2011), ASTM D883-24, ASTM C913-23, ASTM A240/A240M-23a, ASTM D883-23, ASTM D883-20, ASTM D883-19c, ASTM D883-19a, ASTM D883-19, ASTM D883-18a, ASTM D883-18, ASTM C822-18, ASTM A240/A240M-17, ASTM D883-17, ASTM A240/A240M-16a. Understanding these relationships helps ensure you are using the most current and applicable version of the standard.
ASTM C1644-06(2017) is available in PDF format for immediate download after purchase. The document can be added to your cart and obtained through the secure checkout process. Digital delivery ensures instant access to the complete standard document.
Standards Content (Sample)
This international standard was developed in accordance with internationally recognized principles on standardization established in the Decision on Principles for the
Development of International Standards, Guides and Recommendations issued by the World Trade Organization Technical Barriers to Trade (TBT) Committee.
Designation:C1644 −06 (Reapproved 2017)
Standard Specification for
Resilient Connectors Between Reinforced Concrete On-Site
Wastewater Tanks and Pipes
This standard is issued under the fixed designation C1644; the number immediately following the designation indicates the year of
original adoption or, in the case of revision, the year of last revision. A number in parentheses indicates the year of last reapproval. A
superscript epsilon (´) indicates an editorial change since the last revision or reapproval.
1. Scope 2. Referenced Documents
1.1 This specification covers the minimum performance and
2.1 ASTM Standards:
material requirements for resilient connectors used for connec- A240/A240M Specification for Chromium and Chromium-
tions between reinforced concrete tanks used for septic effluent Nickel Stainless Steel Plate, Sheet, and Strip for Pressure
treatment/detention, including those referenced in Specifica- Vessels and for General Applications
tions C913 and C1227. C822 Terminology Relating to Concrete Pipe and Related
Products
1.1.1 These connectors are designed to eliminate leakage
C913 Specification for Precast Concrete Water and Waste-
between the pipe(s) and tank.
water Structures
1.2 A complete metric companion to Specification C1644
C1227 Specification for Precast Concrete Septic Tanks
has been developed—C1644M; therefore, no metric equiva-
D395 Test Methods for Rubber Property—Compression Set
lents are presented in this specification.
D412 Test Methods forVulcanized Rubber andThermoplas-
NOTE 1—This specification covers the design, material, and perfor-
tic Elastomers—Tension
mance of the resilient connection only. Connections covered by this
D471 Test Method for Rubber Property—Effect of Liquids
specification are adequate for hydrostatic pressures up to 5 psi (11.5 ft)
D543 Practices for Evaluating the Resistance of Plastics to
without leakage when tested in accordance with Section 7. Infiltration or
exfiltration quantities for an installed system are dependent upon many Chemical Reagents
factors other than the connectors between tanks and pipes, and allowable
D573 Test Method for Rubber—Deterioration in an Air
quantities must be covered by other specifications and suitable testing of
Oven
the installed pipe and system.
D624 Test Method for Tear Strength of Conventional Vul-
1.3 The following precautionary caveat pertains only to the
canized Rubber and Thermoplastic Elastomers
test methods portion, Section 7, of this specification. This
D746 Test Method for Brittleness Temperature of Plastics
standard does not purport to address all of the safety concerns,
and Elastomers by Impact
if any, associated with its use. It is the responsibility of the user
D883 Terminology Relating to Plastics
of this standard to establish appropriate safety, health, and
D1149 Test Methods for Rubber Deterioration—Cracking in
environmental practices and determine the applicability of
an Ozone Controlled Environment
regulatory limitations prior to use.
D1566 Terminology Relating to Rubber
1.4 This international standard was developed in accor- D2240 Test Method for Rubber Property—Durometer Hard-
dance with internationally recognized principles on standard- ness
ization established in the Decision on Principles for the
Development of International Standards, Guides and Recom- 3. Terminology
mendations issued by the World Trade Organization Technical
3.1 Definitions:
Barriers to Trade (TBT) Committee.
3.1.1 Terms relating to plastics and rubber shall be as
defined in Terminologies D883 and D1566, respectively.
This specification is under the jurisdiction ofASTM Committee C27 on Precast
ConcreteProductsandisthedirectresponsibilityofSubcommitteeC27.30onWater
and Wastewater Containers. For referenced ASTM standards, visit the ASTM website, www.astm.org, or
Current edition approved Nov. 1, 2017. Published November 2017. Originally contact ASTM Customer Service at service@astm.org. For Annual Book of ASTM
approved in 2006. Last previous edition approved in 2011 as C1644 – 06(2011). Standards volume information, refer to the standard’s Document Summary page on
DOI: 10.1520/C1644-06R17. the ASTM website.
Copyright © ASTM International, 100 Barr Harbor Drive, PO Box C700, West Conshohocken, PA 19428-2959. United States
C1644−06 (2017)
TABLE 1 Resilient Material Tests
A
Test Test Requirements ASTM Test Method
Chemical Resistance
1 N sulfuric acid No weight loss D543, at 22°C for 48 h
1 N hydrochloric acid No weight loss
Tensile strength 1000 psi, min D412
Elongation at break 350 %, min
B
Hardness ±5 from manufacturer’s specified hardness D2240 (Type A Durometer)
Accelerated oven-aging Decrease of 15 %, max, of original tensile strength, D573, 70 ± 1°C for 7 days
Decrease of 20 %, max, of original elongation
Compression set Decrease of 25 %, max, of original deflection D395, method B, at 70°C for 22 h
Water absorption Increase of 10 %, max, of original by weight D471, immerse 0.75 by 2 in. specimen
in distilled water at 70°C for 48 h
Ozone resistance Rating 0 D1149
Low-temperature brittle point No fracture at –40°C D746
Tear resistance 150 lbf/in., min. D624, Die B
A
Specimens shall be prepared from connector specimens, and shall not be prepared from laboratory slabs or by direct molding.
B
The connector manufacturer shall select the hardness appropriate for each component of the connector. Thereafter, the hardness shall comply within the tolerances in
Table 1.
3.1.2 Terms relating to precast concrete tanks, and related durable means, provided that it meets the requirements of
products shall be as defined in Terminology C822 and as Table 1 and Section 7.
modified in 3.1.3 – 3.1.5.
5.2 Purchaser shall require that all pipe stubs installed, to
3.1.3 connector—the entire assembly including resilient
allow for future connection to the structure, be mechanically
seals and metallic or nonmetallic mechanical devices, if any,
restrained from movement by means of, and in addition to, the
used therein.
resilient connectors.
3.1.4 pipe—the inlet or outlet pipe connected to the tank.
6. Basis of Acceptance
3.1.5 pipe stub—a short section of pipe, installed in the
structure as an inlet or outlet pipe, for future connection.
6.1 Each connector design shall be tested in accordance
with the requirements of Section 7. For connectors into which
4. Materials and Manufacture
more than one pipe size may be installed, each pipe size shall
4.1 All materials shall be suitable for use in sanitary sewage
be tested independently.
applications.
6.2 The acceptability of the resilient connector shall be
4.1.1 Resilient Materials—Resilient materials for connec-
determinedbytheresultsofthephysicaltestsprescribedinthis
tors shall be manufactured from natural or synthetic materials
specification, and by inspection, to determine whether the
and shall conform to the requirements prescribed in Table 1
connector conforms to the specification with regards to design
and 4.1. If a splice is used i
...




Questions, Comments and Discussion
Ask us and Technical Secretary will try to provide an answer. You can facilitate discussion about the standard in here.
Loading comments...