ASTM C1698-19
(Test Method)Standard Test Method for Autogenous Strain of Cement Paste and Mortar
Standard Test Method for Autogenous Strain of Cement Paste and Mortar
SIGNIFICANCE AND USE
5.1 Autogenous strain is the self-created bulk strain of cement paste, mortar, or concrete during hardening at constant temperature. In conventional concrete, autogenous shrinkage strain is generally negligible, but in concrete with low water-cementitious materials ratio (w/cm) or with silica fume it may be considerable (1).5 Restraint of the autogenous strain by aggregates or adjoining structural members may result in formation of micro and macro cracks that impair strength, durability and aesthetics. Cracks may also be a problem with regard to hygienic cleaning of surfaces.
5.2 An accurate measurement of the autogenous strain of cementitious mixtures with low w/cm is important for evaluating the risk of early-age cracking of concrete structures. Measurements of autogenous strain have been carried out using either volumetric or linear methods. Both methods may show evidence of significant artifacts (1); therefore, results of the two methods may disagree considerably if not carried out properly.
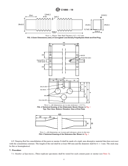
5.3 A sealed, flexible corrugated mold system (2) combines the advantages of linear and volumetric measurement of autogenous strain, while avoiding most of their disadvantages. The mold effectively prevents moisture loss and minimizes restraint to volume change during hardening. Moreover, results obtained with the corrugated mold system agree with those from the volumetric method, once some artifacts, in particular water absorption through the membrane used to contain the test specimen, have been eliminated in the latter (3,4). The corrugated mold system is easier to use and shows better repeatability than the volumetric technique (3,4). Measurements with the corrugated mold system are in good agreement with unrestrained length change measurements obtained using Test Method C157/C157M with sealed specimens (5); however, Test Method C157/C157M does not allow measurement of the shrinkage occurring before 24 h (5).
5.4 This test method can be used to evaluate the effec...
SCOPE
1.1 This test method measures the bulk strain of a sealed cement paste or mortar specimen, including those containing admixtures, various supplementary cementitious materials (SCM), and other fine materials, at constant temperature and not subjected to external forces, from the time of final setting until a specified age. This strain is known as autogenous strain. Autogenous strain is most significant in concrete with low water-cementitious materials ratio (w/cm) (See Note 1).
Note 1: A low water-cementitious materials ratio (w/cm) can be considered to be a water to cement ratio of 0.40 or lower for this test.
1.2 The values stated in SI units are to be regarded as standard. No other units of measurement are included in this standard.
1.3 The text of this standard references notes and footnotes that provide explanatory material. These notes and footnotes (excluding those in tables and figures) shall not be considered as requirements of this standard.
1.4 This standard does not purport to address all of the safety concerns, if any, associated with its use. It is the responsibility of the user of this standard to establish appropriate safety, health, and environmental practices and determine the applicability of regulatory limitations prior to use. (Warning—Fresh hydraulic cementitious mixtures are caustic and may cause chemical burns to skin and tissue upon prolonged exposure.2)
1.5 This international standard was developed in accordance with internationally recognized principles on standardization established in the Decision on Principles for the Development of International Standards, Guides and Recommendations issued by the World Trade Organization Technical Barriers to Trade (TBT) Committee.
General Information
Relations
Buy Standard
Standards Content (Sample)
This international standard was developed in accordance with internationally recognized principles on standardization established in the Decision on Principles for the
Development of International Standards, Guides and Recommendations issued by the World Trade Organization Technical Barriers to Trade (TBT) Committee.
Designation: C1698 − 19
Standard Test Method for
1
Autogenous Strain of Cement Paste and Mortar
This standard is issued under the fixed designation C1698; the number immediately following the designation indicates the year of
original adoption or, in the case of revision, the year of last revision. A number in parentheses indicates the year of last reapproval. A
superscript epsilon (´) indicates an editorial change since the last revision or reapproval.
1. Scope* 2. Referenced Documents
3
2.1 ASTM Standards:
1.1 This test method measures the bulk strain of a sealed
C125 Terminology Relating to Concrete and Concrete Ag-
cement paste or mortar specimen, including those containing
gregates
admixtures, various supplementary cementitious materials
C157/C157M Test Method for Length Change of Hardened
(SCM), and other fine materials, at constant temperature and
Hydraulic-Cement Mortar and Concrete
not subjected to external forces, from the time of final setting
C191 TestMethodsforTimeofSettingofHydraulicCement
untilaspecifiedage.Thisstrainisknownas autogenous strain.
by Vicat Needle
Autogenous strain is most significant in concrete with low
C192/C192M Practice for Making and Curing Concrete Test
water-cementitious materials ratio (w/cm) (See Note 1).
Specimens in the Laboratory
NOTE 1—A low water-cementitious materials ratio (w/cm) can be
C219 Terminology Relating to Hydraulic Cement
considered to be a water to cement ratio of 0.40 or lower for this test.
C305 Practice for Mechanical Mixing of Hydraulic Cement
Pastes and Mortars of Plastic Consistency
1.2 The values stated in SI units are to be regarded as
C403/C403M Test Method for Time of Setting of Concrete
standard. No other units of measurement are included in this
Mixtures by Penetration Resistance
standard.
C1005 Specification for Reference Masses and Devices for
1.3 The text of this standard references notes and footnotes
Determining Mass and Volume for Use in the Physical
that provide explanatory material. These notes and footnotes
Testing of Hydraulic Cements
4
(excluding those in tables and figures) shall not be considered
2.2 API Specification
as requirements of this standard.
RP 10B-2/ISO 10426-2 Recommended Practice for Testing
Well Cements
1.4 This standard does not purport to address all of the
safety concerns, if any, associated with its use. It is the
3. Terminology
responsibility of the user of this standard to establish appro-
3.1 Definitions:
priate safety, health, and environmental practices and deter-
3.1.1 For definitions of terms used in this test method, refer
mine the applicability of regulatory limitations prior to use.
to Terminologies C125 and C219.
(Warning—Fresh hydraulic cementitious mixtures are caustic
3.2 Definitions of Terms Specific to This Standard:
and may cause chemical burns to skin and tissue upon
2
3.2.1 autogenous strain, n—the bulk strain of a sealed
prolonged exposure. )
specimen of a cementitious mixture, not subjected to external
1.5 This international standard was developed in accor-
forcesandunderconstanttemperature,measuredfromthetime
dance with internationally recognized principles on standard-
offinalsettinguntilaspecifiedage;negativestraincorresponds
ization established in the Decision on Principles for the
to shrinkage and positive strain corresponds to expansion.
Development of International Standards, Guides and Recom-
mendations issued by the World Trade Organization Technical
4. Summary of Test Method
Barriers to Trade (TBT) Committee.
4.1 Aspecimen of freshly mixed paste or mortar is prepared
using a corrugated mold that offers little resistance to length
changeofthespecimen.Themoldissealedtopreventmoisture
1
This test method is under the jurisdiction of ASTM Committee C09 on
Concrete and ConcreteAggregates and is the direct responsibility of Subcommittee
3
C09.68 on Volume Change. For referenced ASTM standards, visit the ASTM website, www.astm.org, or
Current edition approved Oct. 1, 2019. Published November 2019. Originally contact ASTM Customer Service at service@astm.org. For Annual Book of ASTM
approvedin2009.Lastpreviouseditionapprovedin2014asC1698-09(2014).DOI: Standards volume information, refer to the standard’s Document Summary page on
10.1520/C1698-19. the ASTM website.
2 4
Section on Safety Precautions, Manual of Aggregate and Concrete Testing, Available from American Petroleum Institute (API), 1220 L. St., NW,
Annual Book of ASTM Standards, Vol. 04.02. Washington, DC 20005-4070, http://www.api.org.
*A Summary of Changes section appears at the end of this standard
Copyright © ASTM International, 100 Barr Harbor Drive, PO Box C700, West Conshohocken, PA 19428-2959. United States
1
---------
...
This document is not an ASTM standard and is intended only to provide the user of an ASTM standard an indication of what changes have been made to the previous version. Because
it may not be technically possible to adequately depict all changes accurately, ASTM recommends that users consult prior editions as appropriate. In all cases only the current version
of the standard as published by ASTM is to be considered the official document.
Designation: C1698 − 09 (Reapproved 2014) C1698 − 19
Standard Test Method for
1
Autogenous Strain of Cement Paste and Mortar
This standard is issued under the fixed designation C1698; the number immediately following the designation indicates the year of
original adoption or, in the case of revision, the year of last revision. A number in parentheses indicates the year of last reapproval. A
superscript epsilon (´) indicates an editorial change since the last revision or reapproval.
1. Scope Scope*
1.1 This test method measures the bulk strain of a sealed cement paste or mortar specimen, including those containing
admixtures, various supplementary cementitious materials (SCM), and other fine materials, at constant temperature and not
subjected to external forces, from the time of final setting until a specified age. This strain is known as autogenous strain.
Autogenous strain is most significant in concrete with low water-cementitious materials ratio (w/cm) (See Note 1).
NOTE 1—A low water-cementitious materials ratio (w/cm) can be considered to be a water to cement ratio of 0.40 or lower for this test.
1.2 The values stated in SI units are to be regarded as standard. No other units of measurement are included in this standard.
1.3 This standard does not purport to address all of the safety concerns, if any, associated with its use. It is the responsibility
of the user of this standard to establish appropriate safety and health practices and determine the applicability of regulatory
limitations prior to use.The text of this standard references notes and footnotes that provide explanatory material. These notes and
footnotes (excluding those in tables (Warning—Fresh hydraulic cementitious mixtures are caustic and may cause chemical burns
to skin and tissue upon prolonged exposure.and figures) shall not be considered as requirements of this standard.)
1.4 This standard does not purport to address all of the safety concerns, if any, associated with its use. It is the responsibility
of the user of this standard to establish appropriate safety, health, and environmental practices and determine the applicability of
regulatory limitations prior to use. (Warning—Fresh hydraulic cementitious mixtures are caustic and may cause chemical burns
2
to skin and tissue upon prolonged exposure. )
1.5 This international standard was developed in accordance with internationally recognized principles on standardization
established in the Decision on Principles for the Development of International Standards, Guides and Recommendations issued
by the World Trade Organization Technical Barriers to Trade (TBT) Committee.
2. Referenced Documents
3
2.1 ASTM Standards:
C125 Terminology Relating to Concrete and Concrete Aggregates
C157/C157M Test Method for Length Change of Hardened Hydraulic-Cement Mortar and Concrete
C191 Test Methods for Time of Setting of Hydraulic Cement by Vicat Needle
C192/C192M Practice for Making and Curing Concrete Test Specimens in the Laboratory
C219 Terminology Relating to Hydraulic Cement
C305 Practice for Mechanical Mixing of Hydraulic Cement Pastes and Mortars of Plastic Consistency
C403/C403M Test Method for Time of Setting of Concrete Mixtures by Penetration Resistance
C1005 Specification for Reference Masses and Devices for Determining Mass and Volume for Use in the Physical Testing of
Hydraulic Cements
4
2.2 API Specification
RP 10B-2/ISO 10426-2 Recommended Practice for Testing Well Cements
3. Terminology
3.1 Definitions:
3.1.1 For definitions of terms used in this test method, refer to Terminologies C125 and C219.
1
This test method is under the jurisdiction of ASTM Committee C09 on Concrete and Concrete Aggregates and is the direct responsibility of Subcommittee C09.68 on
Volume Change.
Current edition approved Oct. 1, 2014Oct. 1, 2019. Published November 2014November 2019. Originally approved in 2009. Last previous edition approved in 20092014
as C1698C1698-09(2014).-09. DOI: 10.1520/C1698-09R14.10.1520/C1698-19.
2
Section on Safety Precautions, Manual of Aggregate and Concrete Testing, Annual Book of ASTM Standards, Vol. 04.02.
3
For referenced ASTM standards, visit the ASTM website, www.astm.org, or contact ASTM Customer Service at service@astm.org. For Annual Book of ASTM Standards
volume information, refer to the standard’s Document Summary page on the ASTM website.
4
Available from American Petroleum Institute (API), 1220 L. St., NW, Washington, DC 20005-4070, http://www.api.org.
*A Summary of Changes section appears at the end of this standard
Copyright © ASTM Internat
...











Questions, Comments and Discussion
Ask us and Technical Secretary will try to provide an answer. You can facilitate discussion about the standard in here.