ASTM C349-18
(Test Method)Standard Test Method for Compressive Strength of Hydraulic-Cement Mortars (Using Portions of Prisms Broken in Flexure)
Standard Test Method for Compressive Strength of Hydraulic-Cement Mortars<brk/> (Using Portions of Prisms Broken in Flexure)
SIGNIFICANCE AND USE
4.1 This method provides a means of obtaining compressive strength values from the same specimens previously used for flexural strength determinations by Test Method C348. The compressive strength values are for reference purposes, and not as substitutes for values obtained by Test Method C109/C109M for cement acceptance.
SCOPE
1.1 This test method covers the determination of the compressive strength of hydraulic-cement mortars, using for the test specimens portions of prisms made and broken in flexure in accordance with Test Method C348.
1.2 The values stated in SI units are to be regarded as standard. No other units of measurement are included in this standard.
1.3 Values in SI units shall be obtained by measurement in SI units or by appropriate conversion, using the Rules for Conversion and rounding given in Standard IEEE/ASTM SI 10, of measurements made in other units.
1.4 This standard does not purport to address all of the safety concerns, if any, associated with its use. It is the responsibility of the user of this standard to establish appropriate safety, health, and environmental practices and determine the applicability of regulatory limitations prior to use. (Warning—Fresh hydraulic cementitious mixtures are caustic and may cause chemical burns to skin and tissue upon prolonged exposure.2)
1.5 This international standard was developed in accordance with internationally recognized principles on standardization established in the Decision on Principles for the Development of International Standards, Guides and Recommendations issued by the World Trade Organization Technical Barriers to Trade (TBT) Committee.
General Information
Relations
Buy Standard
Standards Content (Sample)
This international standard was developed in accordance with internationally recognized principles on standardization established in the Decision on Principles for the
Development of International Standards, Guides and Recommendations issued by the World Trade Organization Technical Barriers to Trade (TBT) Committee.
Designation: C349 −18
Standard Test Method for
Compressive Strength of Hydraulic-Cement Mortars
1
(Using Portions of Prisms Broken in Flexure)
This standard is issued under the fixed designation C349; the number immediately following the designation indicates the year of
original adoption or, in the case of revision, the year of last revision. A number in parentheses indicates the year of last reapproval. A
superscript epsilon (´) indicates an editorial change since the last revision or reapproval.
1. Scope* Hydraulic Cement Mortars (Using 2-in. or [50-mm] Cube
Specimens)
1.1 This test method covers the determination of the com-
C125 Terminology Relating to Concrete and Concrete Ag-
pressive strength of hydraulic-cement mortars, using for the
gregates
test specimens portions of prisms made and broken in flexure
C219 Terminology Relating to Hydraulic Cement
in accordance with Test Method C348.
C348 Test Method for Flexural Strength of Hydraulic-
1.2 The values stated in SI units are to be regarded as
Cement Mortars
standard. No other units of measurement are included in this
C670 Practice for Preparing Precision and Bias Statements
standard.
for Test Methods for Construction Materials
IEEE/ASTM SI 10 Standard for Use of the International
1.3 Values in SI units shall be obtained by measurement in
SI units or by appropriate conversion, using the Rules for System of Units (SI): The Modern Metric System
Conversion and rounding given in Standard IEEE/ASTM SI
3. Terminology
10, of measurements made in other units.
3.1 Definitions:
1.4 This standard does not purport to address all of the
3.1.1 For definitions of terms used in this test method, refer
safety concerns, if any, associated with its use. It is the
to Terminology C125 and C219.
responsibility of the user of this standard to establish appro-
priate safety, health, and environmental practices and deter-
4. Significance and Use
mine the applicability of regulatory limitations prior to use.
(Warning—Fresh hydraulic cementitious mixtures are caustic
4.1 This method provides a means of obtaining compressive
and may cause chemical burns to skin and tissue upon strength values from the same specimens previously used for
2
prolonged exposure. )
flexural strength determinations by Test Method C348. The
1.5 This international standard was developed in accor- compressivestrengthvaluesareforreferencepurposes,andnot
dance with internationally recognized principles on standard-
as substitutes for values obtained by Test Method C109/
ization established in the Decision on Principles for the C109M for cement acceptance.
Development of International Standards, Guides and Recom-
5. Apparatus
mendations issued by the World Trade Organization Technical
Barriers to Trade (TBT) Committee.
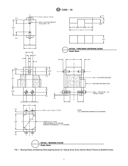
5.1 Bearing Plates—The bearing plates shall be ≥25 mm in
thicknessandshallbemadeofahardmetal.Thesurfacesofthe
2. Referenced Documents
bearing plates that are placed in contact with the specimens
3
shall be 40.0 6 0.1-mm by 50.8-mm rectangles, with the
2.1 ASTM Standards:
50.8-mm dimension at right angles to the longitudinal axis of
C109/C109M Test Method for Compressive Strength of
the prism. The bearing plate surfaces in contact with the
specimen shall have a Rockwell hardness of not less than 60
HRC. These surfaces shall not depart from plane surfaces by
1
This test method is under the jurisdiction ofASTM Committee C01 on Cement
more than 0.01 mm when the plates are new and shall be
and is the direct responsibility of Subcommittee C01.27 on Strength.
maintained within a permissible variation of 0.03 mm.
Current edition approved Dec. 1, 2018. Published December 2018. Originally
approved in 1954. Last previous edition approved in 2014 as C349 – 14. DOI:
5.2 Device for Aligning Bearing Plates—Adevice for align-
10.1520/C0349-18.
2
ing the bearing plates to ensure the proper location of the upper
See the section on Safety, Manual of Cement Testing, Annual Book of ASTM
Standards, Vol 04.01.
plate with reference to the lower plate is shown in Fig. 1.Ifthe
3
For referenced ASTM standards, visit the ASTM website, www.astm.org, or
upper bearing plate does not have free movement within the
contact ASTM Customer Service at service@astm.org. For Annual Book of ASTM
aligning plates, these shall be separated from the bottom plate
Standards volume information, refer to the standard’s Document Summary page on
the ASTM website. by insertion of 0.05-mm shims on each side of the bottom
*A Summary of Changes section appears at the end of this standard
Copyright © ASTM International, 100 Barr Harbor Drive, PO Box C700, West Conshohocken, PA 19428-2959. United States
1
---------------------- Page: 1 --
...
This document is not an ASTM standard and is intended only to provide the user of an ASTM standard an indication of what changes have been made to the previous version. Because
it may not be technically possible to adequately depict all changes accurately, ASTM recommends that users consult prior editions as appropriate. In all cases only the current version
of the standard as published by ASTM is to be considered the official document.
Designation: C349 − 14 C349 − 18
Standard Test Method for
Compressive Strength of Hydraulic-Cement Mortars
1
(Using Portions of Prisms Broken in Flexure)
This standard is issued under the fixed designation C349; the number immediately following the designation indicates the year of
original adoption or, in the case of revision, the year of last revision. A number in parentheses indicates the year of last reapproval. A
superscript epsilon (´) indicates an editorial change since the last revision or reapproval.
1. Scope*
1.1 This test method covers the determination of the compressive strength of hydraulic-cement mortars, using for the test
specimens portions of prisms made and broken in flexure in accordance with Test Method C348.
1.2 The values stated in SI units are to be regarded as standard. No other units of measurement are included in this standard.
1.3 Values in SI units shall be obtained by measurement in SI units or by appropriate conversion, using the Rules for Conversion
and rounding given in Standard IEEE/ASTM SI 10, of measurements made in other units.
1.4 This standard does not purport to address all of the safety concerns, if any, associated with its use. It is the responsibility
of the user of this standard to establish appropriate safety safety, health, and healthenvironmental practices and determine the
applicability of regulatory limitations prior to use. (Warning—Fresh hydraulic cementitious mixtures are caustic and may cause
2
chemical burns to skin and tissue upon prolonged exposure. )(Warning—Fresh hydraulic cementitious mixtures are caustic and
2
may cause chemical burns to skin and tissue upon prolonged exposure. )
1.5 This international standard was developed in accordance with internationally recognized principles on standardization
established in the Decision on Principles for the Development of International Standards, Guides and Recommendations issued
by the World Trade Organization Technical Barriers to Trade (TBT) Committee.
2. Referenced Documents
3
2.1 ASTM Standards:
C109/C109M Test Method for Compressive Strength of Hydraulic Cement Mortars (Using 2-in. or [50-mm] Cube Specimens)
C125 Terminology Relating to Concrete and Concrete Aggregates
C219 Terminology Relating to Hydraulic Cement
C348 Test Method for Flexural Strength of Hydraulic-Cement Mortars
C670 Practice for Preparing Precision and Bias Statements for Test Methods for Construction Materials
IEEE/ASTM SI 10 Standard for Use of the International System of Units (SI): The Modern Metric System
3. Terminology
3.1 Definitions:
3.1.1 For definitions of terms used in this test method, refer to Terminology C125 and C219.
4. Significance and Use
4.1 This method provides a means of obtaining compressive strength values from the same specimens previously used for
flexural strength determinations by Test Method C348. The compressive strength values are for reference purposes, and not as
substitutes for values obtained by Test Method C109/C109M for cement acceptance.
5. Apparatus
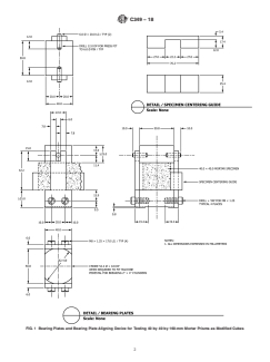
5.1 Bearing Plates—The bearing plates shall be ≥25 mm in thickness and shall be made of a hard metal. The surfaces of the
bearing plates that are placed in contact with the specimens shall be 40.0 6 0.1-mm by 50.8-mm rectangles, with the 50.8-mm
1
This test method is under the jurisdiction of ASTM Committee C01 on Cement and is the direct responsibility of Subcommittee C01.27 on Strength.
Current edition approved Dec. 1, 2014Dec. 1, 2018. Published January 2015December 2018. Originally approved in 1954. Last previous edition approved in 20082014
as C349 – 08.C349 – 14. DOI: 10.1520/C0349-14.10.1520/C0349-18.
2
See the section on Safety, Manual of Cement Testing, Annual Book of ASTM Standards, Vol 04.01.
3
For referenced ASTM standards, visit the ASTM website, www.astm.org, or contact ASTM Customer Service at service@astm.org. For Annual Book of ASTM Standards
volume information, refer to the standard’s Document Summary page on the ASTM website.
*A Summary of Changes section appears at the end of this standard
Copyright © ASTM International, 100 Barr Harbor Drive, PO Box C700, West Conshohocken, PA 19428-2959. United States
1
---------------------- Page: 1 ----------------------
C349 − 18
dimension at right angles to the longitudinal axis of the prism. The bearing plate surfaces in contact with the specimen shall have
a Rockwell hardness of not less than 60 HRC. These surfaces shall not depart from plane surfaces by more than 0.01 mm when
the plates are new and shall be maintained within a permissible variation of 0.03
...











Questions, Comments and Discussion
Ask us and Technical Secretary will try to provide an answer. You can facilitate discussion about the standard in here.