ASTM F1143-19
(Specification)Standard Specification for Manhole Cover Assembly, Bolted, Raised, Oiltight and Watertight
Standard Specification for Manhole Cover Assembly, Bolted, Raised, Oiltight and Watertight
ABSTRACT
This specification provides the design and construction criteria for bolted oiltight and watertight manhole cover assemblies that are subjected to lateral pressures such as resulting from vehicle loads or hydrostatic pressures, and used in decks or bulkheads in which the assembly must be of the raised type. Manhole covers shall be complete with coaming, gasket, welded studs or bolts, washers, and nuts. This specification does not address certain hazardous cargos, as well as the design of the manhole cover assembly for primary or cyclic loads.
SCOPE
1.1 This specification provides design and construction criteria for a raised, bolted, oiltight and watertight manhole cover assembly.
1.2 The manhole cover assemblies depicted in this specification are for use in decks or bulkheads in which the manhole cover assemblies must be of the raised type. Manhole cover shall be complete with coaming, gasket, welded studs or bolts, washers, and nuts.
1.3 Determination of the use of handles will be as specified in the ordering information.
1.4 The values stated in inch-pound units are to be regarded as standard. The values given in parentheses are mathematical conversions to SI units that are provided for information only and are not considered standard.
1.5 This specification is not applicable to certain hazardous cargos (see 46 CFR 153.254 and 46 CFR 154.340).
1.6 This specification provides design and construction for manhole cover assemblies subjected to lateral pressures such as resulting from vehicle loads or hydrostatic pressures. Where manhole cover assemblies are subjected to primary or cyclic loads, other reinforcement or construction criteria may be necessary to integrate the manhole assembly with the required structural reinforcement for openings in decks or bulkheads. Design of the manhole cover assembly for primary or cyclic loads is beyond the scope of this specification.
1.7 This international standard was developed in accordance with internationally recognized principles on standardization established in the Decision on Principles for the Development of International Standards, Guides and Recommendations issued by the World Trade Organization Technical Barriers to Trade (TBT) Committee.
General Information
- Status
- Published
- Publication Date
- 28-Feb-2019
- Technical Committee
- F25 - Ships and Marine Technology
- Drafting Committee
- F25.03 - Outfitting and Deck Machinery
Relations
- Effective Date
- 01-Mar-2019
- Effective Date
- 01-Oct-2023
- Effective Date
- 01-Oct-2018
- Effective Date
- 01-Oct-2014
- Effective Date
- 01-Nov-2013
- Effective Date
- 01-Oct-2013
- Effective Date
- 01-May-2013
- Effective Date
- 01-Nov-2012
- Effective Date
- 01-Oct-2008
- Effective Date
- 15-May-2008
- Effective Date
- 01-May-2008
- Effective Date
- 01-Apr-2008
- Effective Date
- 01-Mar-2008
- Effective Date
- 01-Mar-2007
- Effective Date
- 01-Feb-2006
Overview
ASTM F1143-19 is the internationally recognized standard specification developed by ASTM International for manhole cover assemblies that are bolted, raised, oiltight, and watertight. The specification sets forth fundamental design and construction criteria for manhole covers used in decks or bulkheads, especially where lateral pressures may arise from vehicle loads or hydrostatic forces. These assemblies are essential in the marine industry and other applications requiring secure, reliable access ways that prevent oil or water ingress.
The standard covers requirements for complete manhole cover assemblies, including coaming, gaskets, bolts or welded studs, washers, and nuts. It also includes provisions for inspection, testing, and marking procedures to ensure consistent performance and quality.
Key Topics
Types and Grades
- Two types of assemblies are defined based on access opening size (e.g., 15x23 in., 18x24 in.)
- Multiple grades specify the thickness of the cover plate for different structural needs
Material Selection
- Requirements for materials such as carbon structural steel, shipbuilding steel, and yellow brass for specific components
Performance Criteria
- Designed to be both oiltight and watertight under pressure
- Must withstand lateral forces from loads or hydrostatic pressures typically encountered in marine and industrial environments
- Subjected to rigorous inspection and pressure testing (1.5x design pressure) for integrity
Quality and Marking
- Each assembly must be marked with order details, ASTM designation, type, grade, and manufacturer information
- Specific requirements ensure freedom from sharp edges and weld defects
Ordering Information
- Purchasers must specify type, grade, class, shape (rectangular or oval), quantity, use of handles, gasket type, and approval needs
- Variations in handle presence or gasket material can be accommodated
Applications
ASTM F1143-19 applies to industries where secure access to tanks, decks, or bulkheads is a safety and operational necessity. Typical applications include:
Marine and Shipbuilding
- Essential for access in ship decks and bulkheads
- Required for maintenance access in tanks, voids, or cargo spaces
- Used in both commercial vessels and government/military ships
Industrial and Storage Tanks
- Suitable for accessways in oil and water storage facilities
- Provides safe access while ensuring containment of oil or water
Infrastructure
- Where watertight or oiltight access points are needed for below-deck spaces, such as in bridges or utility tunnels
Related Standards
ASTM F1143-19 references and aligns with a range of international, ASTM, ANSI/ASME, and U.S. standards, ensuring broad compatibility and interoperability:
- ASTM A36/A36M - Specification for Carbon Structural Steel
- ASTM A131/A131M - Specification for Structural Steel for Ships
- ASTM A153/A153M - Specification for Zinc Coating (Hot-Dip) on Iron and Steel Hardware
- ASTM B36/B36M - Specification for Brass Plate, Sheet, Strip, and Rolled Bar
- ASTM D2000 - Classification System for Rubber Products
- ASTM F783 - Specification for Handles and Associated Hardware
- ANSI/ASME B1.1 - Unified Inch Screw Threads
- ANSI Y14.5M - Dimensioning and Tolerancing
- ABS Rules for Building and Classing Steel Vessels
- SSPC SP-10 - Surface Preparation Standard
- 46 CFR (Code of Federal Regulations), Parts 153 & 154 - U.S. regulatory references for hazardous cargoes
Practical Value
Implementing ASTM F1143-19 helps organizations achieve:
- Regulatory compliance in marine and offshore construction
- Assured containment of oil and water, minimizing risk of leaks and environmental incidents
- Reliable performance under demanding conditions with proven test and inspection requirements
- Streamlined procurement through standardized product specifications and ordering information
By adhering to the ASTM F1143-19 standard, manufacturers, shipbuilders, and facility owners ensure safe, reliable, and globally recognized solutions for critical access and containment needs.
Buy Documents
ASTM F1143-19 - Standard Specification for Manhole Cover Assembly, Bolted, Raised, Oiltight and Watertight
REDLINE ASTM F1143-19 - Standard Specification for Manhole Cover Assembly, Bolted, Raised, Oiltight and Watertight
Get Certified
Connect with accredited certification bodies for this standard

DNV
DNV is an independent assurance and risk management provider.

Lloyd's Register
Lloyd's Register is a global professional services organisation specialising in engineering and technology.

ABS Quality Evaluations Inc.
American Bureau of Shipping quality certification.
Sponsored listings
Frequently Asked Questions
ASTM F1143-19 is a technical specification published by ASTM International. Its full title is "Standard Specification for Manhole Cover Assembly, Bolted, Raised, Oiltight and Watertight". This standard covers: ABSTRACT This specification provides the design and construction criteria for bolted oiltight and watertight manhole cover assemblies that are subjected to lateral pressures such as resulting from vehicle loads or hydrostatic pressures, and used in decks or bulkheads in which the assembly must be of the raised type. Manhole covers shall be complete with coaming, gasket, welded studs or bolts, washers, and nuts. This specification does not address certain hazardous cargos, as well as the design of the manhole cover assembly for primary or cyclic loads. SCOPE 1.1 This specification provides design and construction criteria for a raised, bolted, oiltight and watertight manhole cover assembly. 1.2 The manhole cover assemblies depicted in this specification are for use in decks or bulkheads in which the manhole cover assemblies must be of the raised type. Manhole cover shall be complete with coaming, gasket, welded studs or bolts, washers, and nuts. 1.3 Determination of the use of handles will be as specified in the ordering information. 1.4 The values stated in inch-pound units are to be regarded as standard. The values given in parentheses are mathematical conversions to SI units that are provided for information only and are not considered standard. 1.5 This specification is not applicable to certain hazardous cargos (see 46 CFR 153.254 and 46 CFR 154.340). 1.6 This specification provides design and construction for manhole cover assemblies subjected to lateral pressures such as resulting from vehicle loads or hydrostatic pressures. Where manhole cover assemblies are subjected to primary or cyclic loads, other reinforcement or construction criteria may be necessary to integrate the manhole assembly with the required structural reinforcement for openings in decks or bulkheads. Design of the manhole cover assembly for primary or cyclic loads is beyond the scope of this specification. 1.7 This international standard was developed in accordance with internationally recognized principles on standardization established in the Decision on Principles for the Development of International Standards, Guides and Recommendations issued by the World Trade Organization Technical Barriers to Trade (TBT) Committee.
ABSTRACT This specification provides the design and construction criteria for bolted oiltight and watertight manhole cover assemblies that are subjected to lateral pressures such as resulting from vehicle loads or hydrostatic pressures, and used in decks or bulkheads in which the assembly must be of the raised type. Manhole covers shall be complete with coaming, gasket, welded studs or bolts, washers, and nuts. This specification does not address certain hazardous cargos, as well as the design of the manhole cover assembly for primary or cyclic loads. SCOPE 1.1 This specification provides design and construction criteria for a raised, bolted, oiltight and watertight manhole cover assembly. 1.2 The manhole cover assemblies depicted in this specification are for use in decks or bulkheads in which the manhole cover assemblies must be of the raised type. Manhole cover shall be complete with coaming, gasket, welded studs or bolts, washers, and nuts. 1.3 Determination of the use of handles will be as specified in the ordering information. 1.4 The values stated in inch-pound units are to be regarded as standard. The values given in parentheses are mathematical conversions to SI units that are provided for information only and are not considered standard. 1.5 This specification is not applicable to certain hazardous cargos (see 46 CFR 153.254 and 46 CFR 154.340). 1.6 This specification provides design and construction for manhole cover assemblies subjected to lateral pressures such as resulting from vehicle loads or hydrostatic pressures. Where manhole cover assemblies are subjected to primary or cyclic loads, other reinforcement or construction criteria may be necessary to integrate the manhole assembly with the required structural reinforcement for openings in decks or bulkheads. Design of the manhole cover assembly for primary or cyclic loads is beyond the scope of this specification. 1.7 This international standard was developed in accordance with internationally recognized principles on standardization established in the Decision on Principles for the Development of International Standards, Guides and Recommendations issued by the World Trade Organization Technical Barriers to Trade (TBT) Committee.
ASTM F1143-19 is classified under the following ICS (International Classification for Standards) categories: 47.020.10 - Hulls and their structure elements. The ICS classification helps identify the subject area and facilitates finding related standards.
ASTM F1143-19 has the following relationships with other standards: It is inter standard links to ASTM F1143-98(2012), ASTM B36/B36M-23, ASTM B36/B36M-18, ASTM A131/A131M-14, ASTM A131/A131M-13, ASTM B36/B36M-13, ASTM F783-88(2013), ASTM A36/A36M-12, ASTM B36/B36M-08a, ASTM A36/A36M-08, ASTM F783-88(2008), ASTM B36/B36M-08, ASTM A131/A131M-08, ASTM A131/A131M-07, ASTM B36/B36M-06. Understanding these relationships helps ensure you are using the most current and applicable version of the standard.
ASTM F1143-19 is available in PDF format for immediate download after purchase. The document can be added to your cart and obtained through the secure checkout process. Digital delivery ensures instant access to the complete standard document.
Standards Content (Sample)
This international standard was developed in accordance with internationally recognized principles on standardization established in the Decision on Principles for the
Development of International Standards, Guides and Recommendations issued by the World Trade Organization Technical Barriers to Trade (TBT) Committee.
Designation:F1143 −19 An American National Standard
Standard Specification for
Manhole Cover Assembly, Bolted, Raised, Oiltight and
Watertight
This standard is issued under the fixed designation F1143; the number immediately following the designation indicates the year of
original adoption or, in the case of revision, the year of last revision. A number in parentheses indicates the year of last reapproval. A
superscript epsilon (´) indicates an editorial change since the last revision or reapproval.
1. Scope 2. Referenced Documents
2.1 ASTM Standards:
1.1 This specification provides design and construction
A36/A36M Specification for Carbon Structural Steel
criteria for a raised, bolted, oiltight and watertight manhole
A131/A131M Specification for Structural Steel for Ships
cover assembly.
A153/A153M Specification for Zinc Coating (Hot-Dip) on
1.2 The manhole cover assemblies depicted in this specifi-
Iron and Steel Hardware
cation are for use in decks or bulkheads in which the manhole
B36/B36M Specification for Brass Plate, Sheet, Strip, And
cover assemblies must be of the raised type. Manhole cover
Rolled Bar
shall be complete with coaming, gasket, welded studs or bolts,
D2000 Classification System for Rubber Products in Auto-
washers, and nuts.
motive Applications
F783 Specification for Staple, Handgrab, Handle, and Stir-
1.3 Determination of the use of handles will be as specified
rup Rung
in the ordering information.
2.2 ASME Standards:
1.4 The values stated in inch-pound units are to be regarded
B1.1 Unified Inch Screw Threads
as standard. The values given in parentheses are mathematical
Y14.5M Dimensioning and Tolerancing
conversions to SI units that are provided for information only
B18.2.1 Square, Hex, Heavy Hex, and Askew Head Bolts
and are not considered standard.
and Hex, Heavy Hex, Hex Flange, Lobed Head, and Lag
Screws (Inch Series)
1.5 This specification is not applicable to certain hazardous
cargos (see 46 CFR 153.254 and 46 CFR 154.340).
2.3 ABS Standard:
Rules for Building and Classing Steel Vessels
1.6 This specification provides design and construction for
2.4 SSPC Standard:
manholecoverassembliessubjectedtolateralpressuressuchas
SP-10 Surface Preparation Specification No. 10
resulting from vehicle loads or hydrostatic pressures. Where
manhole cover assemblies are subjected to primary or cyclic
2.5 Code of Federal Regulations (CFR) Standard:
loads, other reinforcement or construction criteria may be
46 CFR Title 46 of the Code of Federal Regulations
necessary to integrate the manhole assembly with the required
structural reinforcement for openings in decks or bulkheads. 3. Terminology
Design of the manhole cover assembly for primary or cyclic
3.1 Definitions:
loads is beyond the scope of this specification.
3.1.1 manhole, n—an accessway located in a tank structure.
1.7 This international standard was developed in accor-
dance with internationally recognized principles on standard-
ization established in the Decision on Principles for the
For referenced ASTM standards, visit the ASTM website, www.astm.org, or
contact ASTM Customer Service at service@astm.org. For Annual Book of ASTM
Development of International Standards, Guides and Recom-
Standards volume information, refer to the standard’s Document Summary page on
mendations issued by the World Trade Organization Technical
the ASTM website.
Barriers to Trade (TBT) Committee.
Available from American Society of Mechanical Engineers (ASME), ASME
International Headquarters, Two Park Ave., New York, NY 10016-5990, http://
www.asme.org.
Available from American Bureau of Shipping (ABS), ABS Plaza, 1701 City
This specification is under the jurisdiction of ASTM Committee F25 on Ships Plaza Dr., Spring, TX 77389, http://www.eagle.org.
and Marine Technology and is the direct responsibility of Subcommittee F25.03 on Available from Society for Protective Coatings (SSPC), 800 Trumbull Dr.,
Outfitting and Deck Machinery. Pittsburgh, PA 15205, http://www.sspc.org.
Current edition approved March 1, 2019. Published April 2019. Originally Available from U.S. Government Printing Office, Superintendent of
approved in 1988. Last previous edition approved in 2012 as F1143 – 98 (2012). Documents, 732 N. Capitol St., NW, Washington, DC 20401-0001, http://
DOI: 10.1520/F1143-19. www.access.gpo.gov.
Copyright © ASTM International, 100 Barr Harbor Drive, PO Box C700, West Conshohocken, PA 19428-2959. United States
F1143−19
3.1.2 raised, n—manhole cover seat is located on an angle tolerances prescribed inASME B1.1. The nut shall conform to
orflatbarcoamingwhichprotrudesfromthetankstructureinto dimensions prescribed in ASME B18.2.1.
the space from which it is accessed.
6.7 Unless otherwise specified in ordering information,
gasket shall be rubber, ⁄16 in. (4.8 mm) thick, 50 6 5
4. Classification
durometer, or other such classification society rules as may be
4.1 Type I—15- by 23-in. (381- by 584-mm) size of access applicable. Manhole cover assemblies for government applica-
opening. Type II—18- by 24-in. (457- by 610-mm) size of tion see Annex A2 for type of gaskets.
access opening.
6.8 Welding to conform to the latest issue of the American
4.2 Grade 1— ⁄4-in. (6.35-mm) thick cover plate. Grade Bureau of Shipping Rules in accordance with Classification
3 1
2— ⁄8-in. (9.5-mm) thick cover plate. Grade 3— ⁄2-in. (13- D2000 5BC507 A14 E034.
mm) thick cover plate.
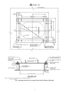
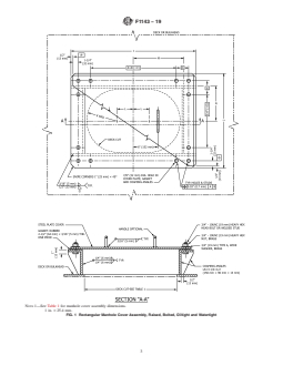
6.9 Details of bolted manhole cover assembly is shown in
4.3 Class A Manhole Cover Assemblies—Class A manhole Fig. 1 and Fig. 2.
cover assemblies shall be abrasive blasted to near white metal
7. Dimensions and Permissible Variations
in accordance with SSPC SP-10 and a commercial marine
quality nonhazardous corrosion-inhibiting and oil-resistant
7.1 Dimensions of manhole assembly shall be as indicated
primer coating be applied for protection for a period of one
in Table 1 and Table 2.
year during shipping and in shipyard handling.
7.2 For plating up to and including ⁄4-in. (6.4-mm)
4.4 Class B Manhole Cover Assemblies—Class B manhole
thickness, use cover plate of ⁄4-in. (6.4-mm) thickness. Plating
cover assemblies shall be galvanized in accordance with 1 3
over ⁄4-in. (6.4-mm) up to, and including ⁄8-in. (9.5-mm)
Specification A153/A153M.
thickness, use cover plate of ⁄8-in. (9.5-mm) thickness. Plating
3 1
over ⁄8-in. (9.5-mm) thickness, use cover plate of ⁄2-in.
5. Ordering Information
(12.7-mm) thickness.
5.1 The purchasers’ ordering information shall include the
8. Workmanship, Finish, and Appearance
following information:
5.1.1 ASTM designation and year of issue,
8.1 Items produced under this specification shall be free of
5.1.2 Type (see 4.1),
splinters, sharp edges, burrs, projections, and weld spatters.
5.1.3 Grade (see 4.2),
5.1.4 Class (see 4.3 and 4.4),
9. Sampling
5.1.5 Shape (rectangular or oval) (see Fig. 1 and Fig. 2),
9.1 For orders for one or two manhole cover assemblies,
5.1.6 Quantity,
each manhole cover assembly shall be inspected.
5.1.7 Remarks—Handles (are/are not) required, and
9.2 For orders for three to ten manhole cover assemblies,
5.1.8 Approval—Classification society approval (is/is not)
two manhole cover assemblies shall be selected at random. If
required.
any one of them fails to meet requirements, then all manhole
5.1.9 Gasket, if other than specified (see 6.7).
cover assemblies in the order shall be inspected.
6. Materials and Manufacture
9.3 For orders for more than ten manhole cover assemblies,
they shall be separated into groups of ten (or fraction thereof)
6.1 Plate for the cover to be of Specifications A36/A36M or
for sampling purposes.
A131/A131M steel.
6.2 Coaming to be of Specifications A36/A36M or A131/
10. Inspection and Testing
A131M steel.
10.1 Responsibility—Unless otherwise in the order, the
6.3 Round bar for the handle shall be in accordance with
manufacturer is responsible for the performance of all inspec-
Specification F783, Type A.
tionandtestingspecifiedherein.Themanufacturermayusethe
3 1
6.4 Bolts shall be ⁄4 in. (19.05 mm) by 2 ⁄4 in. (57 mm) manufacturer’s own facilities or any commercial facility ac-
3 3
long. Welded studs shall be ⁄4 in. (19.05 mm) by 1 ⁄4 in. (44.4 ceptable to the purchaser. The purchaser reserves the right to
mm) long. Bolts or welded studs shall be manufactured of perform any of the inspections and tests set forth where such
ordinary steel to commercial standards. Threads shall be the are deemed necessary to assure that supplies conform to
coarse thread series as specified in the latest issue of ASME prescribed requirements. Nonconforming manhole cover as-
B1.1. semblies shall not be offered for delivery.
6.5 Washers shall be ASME B18.2.1 Type A, ⁄4-in. (19.05- 10.2 Inspection—The dimensions of the manhole cover
mm) washer, 2-in. (50.8-mm) by 0.148-in. (3.8-mm) thick assembly and its components shall be checked to ensure that
standard flat manufactured of yellow brass, Specification they are within specified tolerances.
B36/B36M.
10.3 Test Method—Each manhole cover assembly shall be
6.6 Heavy hex nuts shall be ⁄4 in. (19.05 mm) and manu- designedtothepressurelistedinTable1andTable2andtested
factured of yellow brass, Specification B36/B36M. Threads in to a pressure equal to 1.5 times the design pressure. The test
nuts shall conform to the dimensions for coarse threads with pressure shall be held for a minimum of 5 min. There shall be
F1143−19
NOTE 1—See Table 1 for manhole cover assembly dimensions.
1 in. = 25.4 mm.
FIG. 1 Rectangular Manhole Cover Assembly, Raised, Bolted, Oiltight and Watertight
F1143−19
NOTE 1—See Table 2 for manhole cover assembly dimensions.
1 in. = 25.4 mm.
FIG. 2 Oval Manhole Cover Assembly, Raised, Bolted, Oiltight and Watertight
F1143−19
A
TABLE 1 Dimensions for Rectangle, Raised, Oiltight and Watert
...
This document is not an ASTM standard and is intended only to provide the user of an ASTM standard an indication of what changes have been made to the previous version. Because
it may not be technically possible to adequately depict all changes accurately, ASTM recommends that users consult prior editions as appropriate. In all cases only the current version
of the standard as published by ASTM is to be considered the official document.
Designation: F1143 − 98 (Reapproved 2012) F1143 − 19 An American National Standard
Standard Specification for
Manhole Cover Assembly, Bolted, Raised, Oiltight and
Watertight
This standard is issued under the fixed designation F1143; the number immediately following the designation indicates the year of
original adoption or, in the case of revision, the year of last revision. A number in parentheses indicates the year of last reapproval. A
superscript epsilon (´) indicates an editorial change since the last revision or reapproval.
1. Scope
1.1 This specification provides design and construction criteria for a raised, bolted, oiltight,oiltight and watertight manhole
cover assembly.
1.2 The manhole cover assemblies depicted in this specification are for use in decks or bulkheads in which the manhole cover
assemblies must be of the raised type. Manhole cover shall be complete with coaming, gasket, welded studs or bolts, washers, and
nuts.
1.3 Determination of the use of handles will be as specified in the ordering information.
1.4 The values stated in inch-pound units are to be regarded as the standard. The values given in parentheses are for information
only.mathematical conversions to SI units that are provided for information only and are not considered standard.
1.5 This specification is not applicable to certain hazardous cargos (see Section 46 CFR 153.254 and 46 CFR 154.340).
1.6 This specification provides design and construction for manhole cover assemblies subjected to lateral pressures such as
resulting from vehicle loads or hydrostatic pressures. Where manhole cover assemblies are subjected to primary or cyclic loads,
other reinforcement or construction criteria may be necessary to integrate the manhole assembly with the required structural
reinforcement for openings in decks or bulkheads. Design of the manhole cover assembly for primary or cyclic loads is beyond
the scope of this specification.
1.7 This international standard was developed in accordance with internationally recognized principles on standardization
established in the Decision on Principles for the Development of International Standards, Guides and Recommendations issued
by the World Trade Organization Technical Barriers to Trade (TBT) Committee.
2. Referenced Documents
2.1 ASTM Standards:
A36/A36M Specification for Carbon Structural Steel
A131/A131M Specification for Structural Steel for Ships
A153/A153M Specification for Zinc Coating (Hot-Dip) on Iron and Steel Hardware
B36/B36M Specification for Brass Plate, Sheet, Strip, And Rolled Bar
D2000 Classification System for Rubber Products in Automotive Applications
F783 Specification for Staple, Handgrab, Handle, and Stirrup Rung
2.2 ANSIASME Standards:
B1.1 Unified Inch Screw Threads
ANSI Y14.5M Dimensioning and Tolerancing
B18.2.1 Square and Hex Bolts and Screws, Inch SeriesSquare, Hex, Heavy Hex, and Askew Head Bolts and Hex, Heavy Hex,
Hex Flange, Lobed Head, and Lag Screws (Inch Series)
This specification is under the jurisdiction of ASTM Committee F25 on Ships and Marine Technology and is the direct responsibility of Subcommittee F25.03 on
Outfitting and Deck Machinery.
Current edition approved June 1, 2012March 1, 2019. Published October 2012April 2019. Originally approved in 1988. Last previous edition approved in 20072012 as
F1143 – 98 (2007).(2012). DOI: 10.1520/F1143-98R12.10.1520/F1143-19.
For referenced ASTM standards, visit the ASTM website, www.astm.org, or contact ASTM Customer Service at service@astm.org. For Annual Book of ASTM Standards
volume information, refer to the standard’sstandard’s Document Summary page on the ASTM website.
Available from American National Standards Institute (ANSI), 25 W. 43rd St., 4th Floor, Society of Mechanical Engineers (ASME), ASME International Headquarters,
Two Park Ave., New York, NY 10036, http://www.ansi.org.10016-5990, http://www.asme.org.
Copyright © ASTM International, 100 Barr Harbor Drive, PO Box C700, West Conshohocken, PA 19428-2959. United States
F1143 − 19
2.3 American Bureau of Shipping ABS Standard:
Rules for Building and Classing Steel Vessels
2.4 Steel Structures Painting Council SSPC Standard:
SP-10 Surface Preparation Specification No. 10
2.5 Code of Federal Regulations (CFR) Standard:
CFR 4646 CFR Title 46 of the Code of Federal Regulations
3. Terminology
3.1 Definitions:
3.1.1 manhole—manhole, n—an accessway located in a tank structure.
3.1.2 raised—raised, n—manhole cover seat is located on an angle or flat bar coaming which protrudes from the tank structure
into the space from which it is accessed.
4. Classification
4.1 Type I—15- by 23-in. (381- by 584-mm) size of access opening. Type II—18- by 24-in. (457- by 610-mm) size of access
opening.
1 3 1
4.2 Grade 1— ⁄4-in. (6.35-mm) thick cover plate. Grade 2— ⁄8-in. (9.5-mm) thick cover plate. Grade 3— ⁄2-in. (13-mm) thick
cover plate.
4.3 Class A Manhole Cover Assemblies—Class A manhole cover assemblies shall be abrasive blasted to near white metal in
accordance with SSPC SP-10 and a commercial marine quality nonhazardous corrosion-inhibiting and oil-resistant primer coating
be applied for protection for a period of one year during shipping and in shipyard handling.
4.4 Class B Manhole Cover Assemblies—Class B manhole cover assemblies shall be galvanized in accordance with
Specification A153/A153M.
5. Ordering Information
5.1 The purchasers’purchasers’ ordering information shall include the following information:
5.1.1 ASTM designation and year of issue,
5.1.2 Type (see 4.1),
5.1.3 Grade (see 4.2),
5.1.4 Class (see 4.3 and 4.4),
5.1.5 Shape (rectangular or oval) (see Fig. 1 and Fig. 2),
5.1.6 Quantity,
5.1.7 Remarks—Handles (are/are not) required, and
5.1.8 Approval—Classification society approval (is/is not) required.
5.1.9 Gasket, if other than specified (see 6.7).
6. Materials and Manufacture
6.1 Plate for the cover to be of Specifications A36/A36M or A131/A131M steel.
6.2 Coaming to be of Specifications A36/A36M or A131/A131M steel.
6.3 Round bar for the handle shall be in accordance with Specification F783, Type A.
3 1 3 3
6.4 Bolts shall be ⁄4 in. (19.05 mm) by 2 ⁄4 in. (57 mm) long. Welded studs shall be ⁄4 in. (19.05 mm) by 1 ⁄4 in. (44.4 mm)
long. Bolts or welded studs shall be manufactured of ordinary steel to commercial standards. Threads shall be the coarse thread
series as specified in the latest issue of ANSIASME B1.1.
6.5 Washers shall be ANSIASME B18.2.1 Type A, ⁄4-in. (19.05-mm) washer, 2-in. (50.8-mm) by 0.148-in. (3.8-mm) thick
standard flat manufactured of yellow brass, Specification B36/B36M.
6.6 Heavy hex nuts shall be ⁄4 in. (19.05 mm) and manufactured of yellow brass, Specification B36/B36M. Threads in nuts shall
conform to the dimensions for coarse threads with tolerances prescribed in ANSIASME B1.1. The nut shall conform to dimensions
prescribed in ANSIASME B18.2.1.
Available from American Bureau of Shipping (ABS), ABS Plaza, 16855 Northchase Dr., Houston, TX 77060,1701 City Plaza Dr., Spring, TX 77389,
http://www.eagle.org.
Available from Society for Protective Coatings (SSPC), 40 24th St., 6th Floor, 800 Trumbull Dr., Pittsburgh, PA 15222-4656,15205, http://www.sspc.org.
Available from U.S. Government Printing Office, Superintendent of Documents, 732 N. Capitol St., NW, Washington, DC 20401-0001, http://www.access.gpo.gov.
F1143 − 19
NOTE 1—See Table 1 for manhole cover assembly dimensions.
1 in. = 25.4 mm.
FIG. 1 Rectangular Manhole Cover Assembly, Raised, Bolted, Oiltight and Watertight
F1143 − 19
NOTE 1—See Table 2 for manhole cover assembly dimensions.
1 in. = 25.4 mm.
FIG. 2 Oval Manhole Cover Assembly, Raised, Bolted, Oiltight and Watertight
F1143 − 19
6.7 Unless otherwise specified in ordering information, gasket shall be rubber, ⁄16 in. (4.8 mm) thick, 50 6 5 durometer, or other
such classification society rules as may be applicable. Manhole cover assemblies for government application see Annex A2 for type
of gaskets.
6.8 Welding to conform to the latest issue of the American Bureau of Shipping Rules per in accordance with Classification
D2000 5BC507 A14 E034.
6.9 Details of bolted manhole cover assembly is shown in Fig. 1 and Fig. 2.
7. Dimensions and Permissible Variations
7.1 Dimensions of manhole assembly shall be as indicated in Table 1 and Table 2.
1 1 1
7.2 For plating up to and including ⁄4-in. (6.4-mm) thickness, use cover plate of ⁄4-in. (6.4-mm) thickness. Plating over ⁄4-in.
3 3 3
(6.4-mm) up to, and including ⁄8-in. (9.5-mm) thickness, use cover plate of ⁄8-in. (9.5-mm) thickness. Plating over ⁄8-in. (9.5-mm)
thickness, use cover plate of ⁄2-in. (12.7-mm) thickness.
8. Workmanship, Finish, and Appearance
8.1 Items produced under this specification shall be free of splinters, sharp edges, burrs, projections, and weld spatters.
9. Sampling
9.1 For orders for one or two manhole cover assemblies, each manhole cover assembly shall be inspected.
9.2 For orders for three to ten manhole cover assemblies, two manhole cover assemblies shall be selected at random. If any one
of them fails to meet requirements, then all manhole cover assemblies in the order shall be inspected.
9.3 For orders for more than ten manhole cover assemblies, they shall be separated into groups of ten (or fraction thereof) for
sampling purposes.
10. Inspection and Testing
10.1 Responsibility—Unless otherwise in the order, the manufacturer is responsible for the performance of all inspection and
testing specified herein. The manufacturer may use his the manufacturer’s own facilities or any commercial facility acceptable to
the purchaser. The purchaser reserves the right to perform any of the inspections and tests set forth where such are deemed
necessary to assure that supplies conform to prescribed requirements. Nonconforming manhole cover assemblies shall not be
offered for delivery.
10.2 Inspection—The dimensions of the manhole cover assembly and its components shall be checked to ensure that they are
within specified tolerances.
10.3 Test Method—Each manhole cover assembly shall be designed to the pressure listed in Table 1 and Table 2 and tested to
a pressure equal to 1.5 times the design pressure. The test pressure shall be held for a minimum of 5 min. There shall be no visible
sign of leakage, permanent deformation, or other indications of structural failure of the manhole cover assembly.
10.3.1 Before delivery, the manhole cover assemblies shall be certified as to their watertight and oiltight integrity. Groups of
manhole cover assemblies whose repre
...








Questions, Comments and Discussion
Ask us and Technical Secretary will try to provide an answer. You can facilitate discussion about the standard in here.
Loading comments...